川越市的場新規10区画建売フリープラン
【交通】2沿線利用可!東武東上線『霞ヶ関』徒歩14分、川越線『的場』駅徒歩9分! 【所在地】埼玉県川越市大字的場
【物件のPRコメント】
建物は+1500万円(標準坪数29坪)で間取りは完全自由設計、更に長期優良住宅取得!総額建売価格なのに『ほぼ注文住宅』の建築条件付売地が弊社専属販売で新発表!大手だから実現できる基本建物坪数(29坪・増坪可能)以内なら物件金額は土地+建物1500万円のみ!
2沿線利用可!東武東上線『霞ヶ関』徒歩14分、川越線『的場』駅徒歩9分!
新しく生まれる全10区画のきれいな街並み!
一気に同時期に新しく入居する10世帯だから気遣いが少なくなって嬉しいですね!
元気にスーモに掲載中!過去の『建売フリープラン』で実際に採用した事例の写真も多数掲載しております!
『これから大手分譲会社の建売になっていく物件ですが早い段階の今であればお客様のご要望をお聞きして間取りは自由設計、設備は選択範囲の中から床色や建具、サッシ、水回り色、外壁色合わせまで無料で行えるセミオーダー物件です』という事です!ハウスメーカーさんの様に『見積を取ったらどんどん予算が上がっていく涙』という事は一切ありません!配管引込はもちろん外構工事、更に基礎補強等が必要になれば補強まで全て含む追加無しの安心パック価格です!
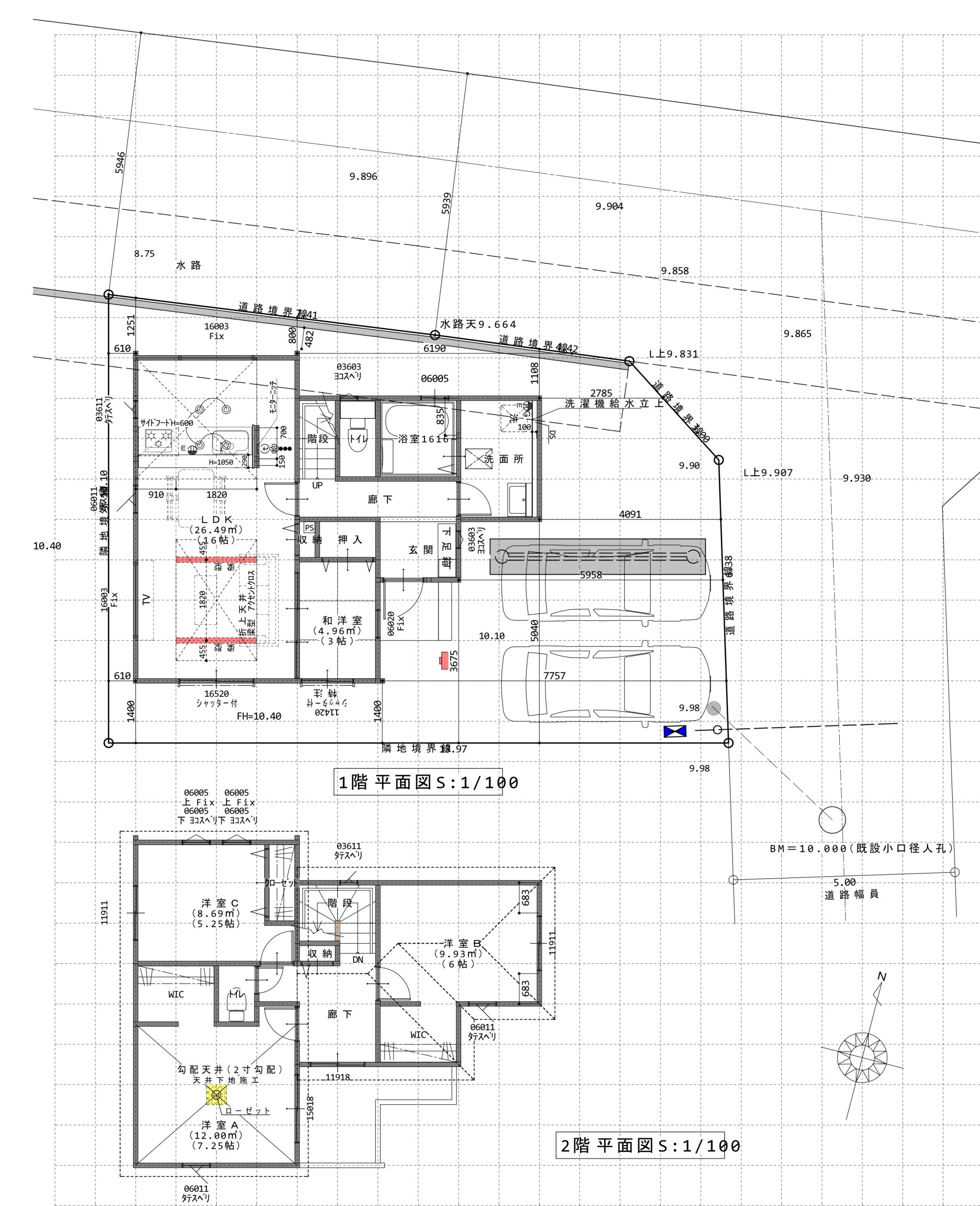
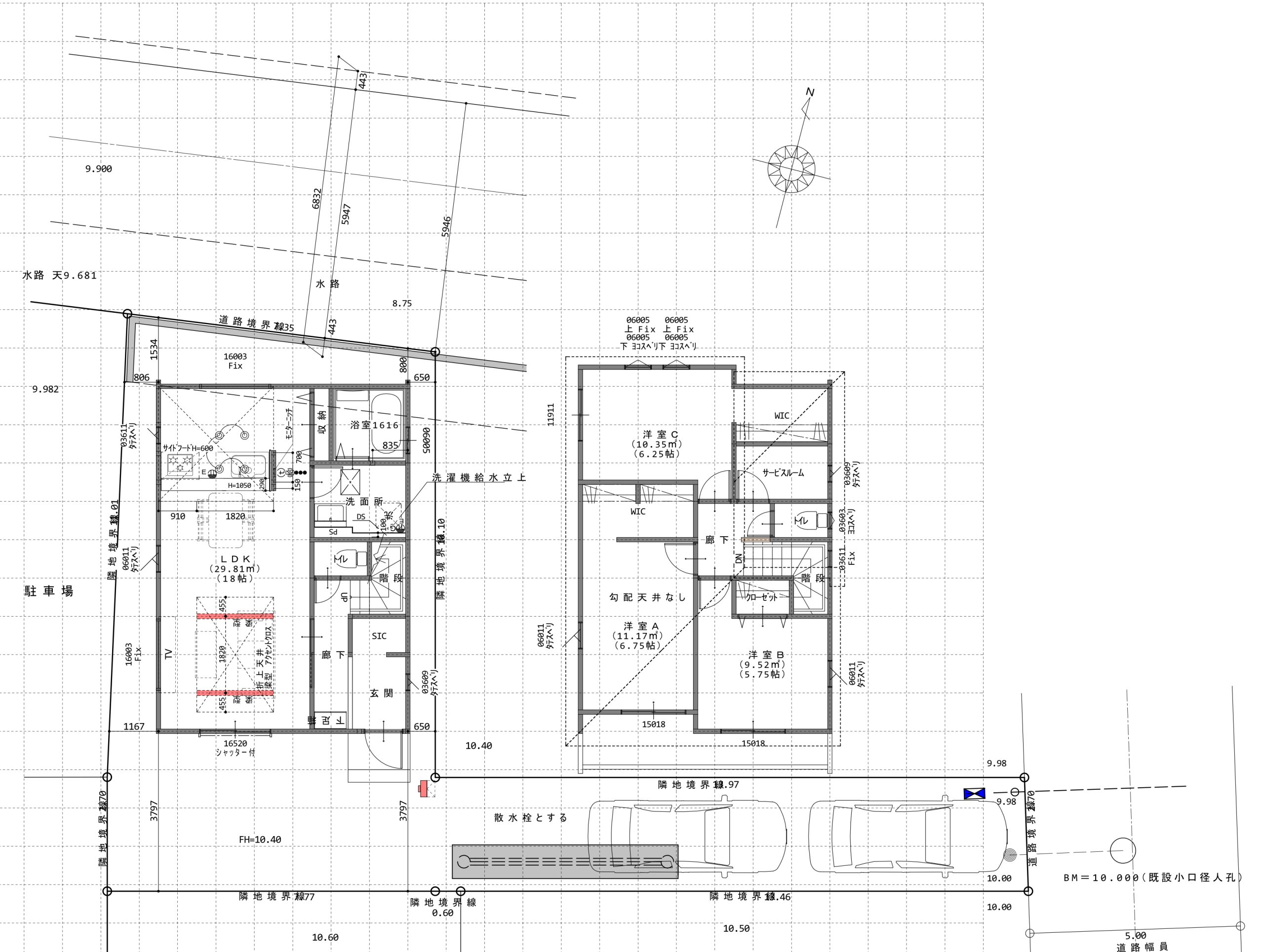
例えば2区画に一般的な間取りを入れた例です、もちろんお客様のご意向を聞いて間取りは1から作成しますので、ボリュームチェックにお使いください!
物件概要・周辺地図
| 物件種別 | 建築条件付き土地 |
|---|---|
| 所在地 | 埼玉県川越市大字的場 |
| 交通 | 2沿線利用可!東武東上線『霞ヶ関』徒歩14分、川越線『的場』駅徒歩9分! |
| 価格 | 1680万円~2480万円万円 |
| 土地面積 | 123.07㎡(37.22坪)~138.59㎡ |
| 建物面積 | 標準坪数29坪 |
| 間取り | 完全自由設計 |
| 構造 | 木造 |
| 階建て | 2階建 |
| 建ぺい率 / 容積率 | 60% / 200% |
| 土地権利 | 所有権 |
| 都市計画 | 市街化区域 |
| 用途地域 | 第一種住居地域 |
| 地目 / 地勢 | 宅地 / 平坦 |
| 主要採光面 | 南 |
| 接道状況・セットバック | 公道4m~5m |
| 学区 | 霞ヶ関東小学校/霞ヶ関東中学校 |
| 引渡 | 即 |
| 備考 |








